Печи «ТРОЙКА»

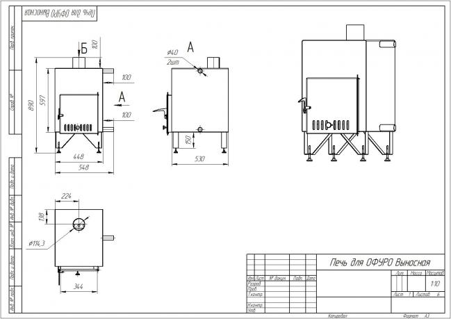
Печь для Офуро (купели) внешняя

Печь для Офуро (японская баня) для нагрева воды внешняя.

Размер 580 х 440 х 600 мм
Вес 46 кг
Материал нержавеющая сталь марки aisi 304 толщиной 2 мм
Гарантия 12 месяцев
Характеристики
Отзывы (0)
Размер 580 х 440 х 600 мм
Вес 46 кг
Материал нержавеющая сталь марки aisi 304 толщиной 2 мм
Гарантия 12 месяцев

Дровяная печь для купели предназначена для прогрева воды. Печь внешняя - размещается снаружи купели.

  • Применяемая для печи сталь марки AISI 304 после сварки не ржавеет, так как является пищевой нержавейкой.
  • Водяная рубашка расположена с 5 сторон вокруг топки, что позволяет эффективно прогревать купель.
  • Объем нагреваемой воды до 2300 л
  • Колосник из нержавеющей стали
  • Диаметр дымохода 110 мм
  • Легко прочищается от золы.
  • Гарантия на сварные швы от разрыва и от протечек.